Housing

KaWo 3: The most important facts about the new residence hall

Kawo 3 mini
Size, features, prices and application procedures

Our new residence hall is expecting its first tenants! After a one year construction period the first building of KaWo 3 is going to open in the beginning of 2017. It provides rooms and apartments for 86 tenants in total.
Here, we inform you about everything you need to know if you are interested in applying.

Wohntyp 1

Einzelapartment
mit Küchenzeile und Badezimmer
Mietpreis: 300 Euro inklusive Nebenkosten, Heizung und Strom  

  • Gesamtgröße: 24 m²
  • Teilmöblierung: Bettgestell, Kleiderschrank, Schreibtisch mit Stuhl
  • voll ausgestattete Küchenzeile, Bad mit WC, Waschbecken und Dusche
  • Boden in Holzdielenoptik, Rolläden
  • Stellplatz und eigener Kellerverschlag optional mietbar

  

 

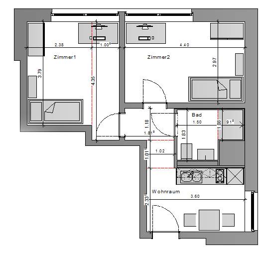
Wohntyp 2

WG für zwei Personen
mit Küchenzeile und Badezimmer
Mietpreis pro Person: 300 Euro inkl. Nebenkosten, Heizung und Strom  

  • Gesamtgröße: 41,8 m²
  • Teilmöblierung: Bettgestell, Kleiderschrank, Schreibtisch mit Stuhl
  • voll ausgestattete Küchenzeile, Bad mit WC, Waschbecken und Dusche
  • Boden in Holzdielenoptik, Rolläden
  • Stellplatz und eigener Kellerverschlag optional mietbar

 

Wohntyp 4

WG für drei Personen
mit Küchenzeile und Badezimmer
Mietpreis pro Person: 300 Euro inkl. Nebenkosten, Heizung und Strom  

  • Gesamtgröße: 74,4 m²
  • Teilmöblierung: Bettgestell, Kleiderschrank, Schreibtisch mit Stuhl
  • voll ausgestattete Küchenzeile, Bad mit WC, Waschbecken und Dusche
  • Boden in Holzdielenoptik, Rolläden
  • Stellplatz und eigener Kellerverschlag optional mietbar

 

Go back